Shower Air Clean Room

Shower Air Clean Room, designed for use in clean production rooms of different cleanliness classes, to prevent the direct ingress of aerosol contaminants during the transition of personnel between rooms of different cleanliness classes.

Functionality:

Function of active cleaning of clothes with a jet of sterile air.

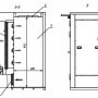
Sealed enclosure made of chemically resistant coated steel.

Sealed doors with double glazing, double sealing contour and smooth hygienic surface.

Single control unit to automate all operations.

Automatic locking of simultaneous door opening. Adjustable delay of door opening for decanting time.

Powerful and reliable air-cleaning ventilation unit, providing a blowing speed of more than 20 m/sec.

Sensor for extremely clogged or damaged HEPA filter.

Reliable, functional, GMP compliant.

Specifications

Overall dimensions: 1290x1000x2300 mm* 

Working area size: 790x910x1930 mm 

Working chamber and casing:

- Material of the frame (housing) galvanised steel (powder painting RAL 7047). 

Ventilation and air purification system inside the chamber:

  • - EBM-PAPST fan -1pc.
  • - Pre-filter F4-1 pc.
  • - Fine filter H14 - 1 pc.
  • - Pressure drop control pipes on filters (type of connection is agreed with the Customer).
  • - Filter integrity and tightness control pipes (connection type to be agreed with the Customer).

Control panel:

  • - SIEMENS control unit.
  • - Air flow rate 0.25 m/s ± 20%, manually adjustable.
  • - Filter contamination indicator, with subsequent compensation of air velocity drop.
  • - Fan operation indicator.